Warszawa, Mokotów

Wohnung 41 m²

41 Meter
2 Zimmer
0 Boden

Vertrieb

Preis

862 000 PLN

Preis pro m²

20 932 PLN

GOTOWE DO ODBIORU : Nowoczesne 2 pokojowe mieszkanie w prestiżowej inwestycji Modern Mokotów – Warszawa | 41,18 m² | ULICA DOMANIEWSKA – SŁUŻEWIEC| OGRÓDEK, MIEJSCE POSTOJOWE | WYSOKIE 382 cm !!!

Na sprzedaż oferujemy wyjątkowe, 382 cm wysokości mieszkanie w stanie deweloperskim w nowoczesnej inwestycji Modern Mokotów, renomowanego dewelopera, zlokalizowanej przy ul. Domaniewskiej. To idealne miejsce dla osób, które cenią komfort życia w sercu Mokotowa – z szybkim dostępem do pracy, sklepów, rozrywki i komunikacji. Inwestycja zaprojektowana z myślą o komforcie i estetyce, z dużą ilością zieleni wokół osiedla.

Opis mieszkania:
•Adres: ul. Domaniewska / Postępu / Budynek F2 – Modern Mokotów, Służewiec
•Metraż: 41,18 m²
•Wysokość mieszkania to aż 382 cm , co sprawia że apartament robi wyjątkowe wrażenie ogromnej przestrzeni
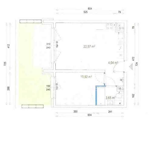
•Układ: 2 pokoje (mieszkanie o nastepujacym układzie: salon z aneksem kuchennym i wyjściem na tarasi ogród : 22,57 m², łazienka o powierzchni 3,65 m², sypialnia 10,92 m²)
•Piętro: 0/10
•Ekspozycja okien i tarasu : zachodnia
•Stan: deweloperski – pełna swoboda aranżacji wnętrza według własnych potrzeb
•Miejsce postojowe: typu parklift, w garażu podziemnym, dodatkowo płatne 50 000 zł.
•Nabycie nieruchomości na zasadzie cesji umowy deweloperskiej.
•Duży potencjał inwestycyjny — doskonała opcja pod wynajem.
•CENA PROMOCYJNA – nie podlega dalszym negocjacjom

W naszej ofercie mamy także więcej mieszkań w tej inwestycji.
Zapraszamy do kontaktu.

Atuty lokalizacji:
•Westfield Mokotów – jedno z największych centrów handlowych w Warszawie – w bezpośrednim sąsiedztwie, vis-a vis inwestycji. Sklepy, restauracje, kino i pełna infrastruktura usługowa. To ogromne ułatwienie na co dzień dla rodzin i osób aktywnych — wygoda i oszczędność czasu.
•bliskość strefy biurowej Służewiec (Mordor) – możliwość szybkiego dojazdu lub dojścia do pracy. Koncentracja miejsc pracy wpływa korzystnie na popyt najmu.
•doskonała komunikacja: metro (linia M1), liczne przystanki autobusowe i tramwajowe ( od ul. Wołoskiej), szybki dostęp do kolei SKM.
•bogata infrastruktura: sklepy, restauracje, szkoły, przedszkola, placówki medyczne.
•zielone otoczenie osiedla i nowoczesna architektura zapewniająca komfort życia.

Opis osiedla Modern Mokotów:
Osiedle zostało zaprojektowane z myślą o wygodzie mieszkańców i wysokiej jakości codziennego życia.
•nowoczesna architektura z eleganckimi elewacjami,
•duża ilość zieleni i starannie zaprojektowane części wspólne,
•bezpieczne patio z placem zabaw i strefą relaksu,
•wysoka jakość materiałów wykończeniowych,
•ciche i kameralne budynki z windami oraz garażem podziemnym,
•osiedle zamknięte i monitorowane, dostępne rowerownie
•ekologiczne podejście – współdzielone trasy i ogrody dachowe dla mieszkańców

Dlaczego warto?
To mieszkanie to doskonały wybór zarówno dla osób szukających komfortowego miejsca do życia w prestiżowej lokalizacji, jak i dla inwestorów planujących zakup pod wynajem – okolica generuje ogromny popyt dzięki połączeniu strefy biurowej, handlowej i świetnej komunikacji.

Jako biuro nieruchomości pobieramy za usługę pośrednictwa wynagrodzenie w formie prowizji. Niniejsze ogłoszenie jest wyłącznie informacją i nie stanowi oferty w rozumieniu art. 66 § 1 Kodeksu Cywilnego

Preis

862 000 PLN

Bereich
41.18 m²
Boden
0
Zimmer
2
Preis m²
20 932 PLN
Parkhaus
Ja

Sie sind an dieser Immobilie interessiert

kontaktieren Sie uns für einen Termin.

Napisz do nas Zadzwoń do nas