Warszawa, Białołęka

שטוח 26 m²

26 מטרים
1 חדרים
1 קומה

מכירות

מחיר

374 000 PLN

מחיר ליחידה m²

13 898 PLN

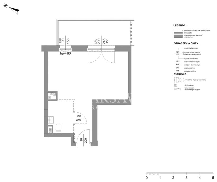
IDEAL INVESTMENT, VAT DEDUCTIBLE – SMALL INVESTMENT APARTMENTS IN WARSAW'S BIAŁOŁĘKA, MODLIŃSKA UL. – PLANNED COMPLETION DATE: Q1 2027 – OWNERSHIP WITH A SEPARATE LAND AND MORTGAGE REGISTER For sale, a modern commercial space with a hotel function in a newly developed investment in Białołęka – a very dynamically developing district of Warsaw. Usable area: 26.91 m². Floor: 1st floor (2nd floor). The unit has two windows, providing excellent lighting and the possibility of creating a separate bedroom area. Investment under construction – planned delivery of the units in early 2027. The estate includes a green relaxation zone exclusively for residents, with a private forest, lighted paths, gazebos, and benches. The building includes a garage and bicycle storage. The development is monitored and secured. Eco-friendly solutions include air-source heat pumps and photovoltaic panels. An ideal rental investment with excellent transport links to the capital city center. The price includes 23% VAT. INVESTMENT BENEFITS: Full VAT deduction. A very attractive price – construction is the best time to buy. Payment is also split according to the schedule and progress. Attractive location – right on Modlińska Street (a three-lane thoroughfare in Białołęka, with a bus stop a 4-minute walk from the development), close to green spaces, services, and educational facilities. A maintenance-free development, we'll handle everything for you – you can outsource your lease management to us, allowing you to generate passive income without the owner's daily intervention. Additionally, the property can be finished and fully prepared for occupancy by us. Long-term, secure capital investment and passive income – as Warsaw remains the fastest-growing market, with year-round, consistent demand for accommodation, owning a small investment property in Białołęka is a great investment with the additional generation of regular rental income. This city significantly increases the security and stability of your investment. Property value appreciation – the dynamically developing capital city continues to increase property value over time. Call for more details; we have more units available in this development.

מחיר

374 000 PLN

שטח פנים
26.91 m²
קומה
1
חדרים
1
מחיר m²
13 898 PLN
חניון
כן

האם אתה מעוניין בנכס זה?

צרו איתנו קשר וקבעו פגישה.

Napisz do nas Zadzwoń do nas