Nowe osiedle w sercu Mokotowa

Modern Mokotów

Dokonała lokalizacja - Służewiec

  • nowe mieszkania w stanie deweloperskim
  • duży potencjał inwestycyjny
  • gotowe do odbioru
Warte uwagi

Warszawa, Białołęka

Mieszkanie 32 m²

32 metrów
1 pokoje
1 piętro

Sprzedaż

Cena

440 590 PLN

cena za m²

13 519 PLN

IDEALNA INWESTYCJA, ODLICZ VAT – MAŁE APARTAMENTY INWESTYCYJNE NA WARSZAWSKIEJ BIAŁOŁĘCE, UL. MODLIŃSKA– PLANOWANY TERMIN ODBIORU: I KWARTAŁ 2027 – WŁASNOŚĆ Z ODRĘBNĄ KSIĘGĄ WIECZYSTĄ- CENA NETTO
Na sprzedaż nowoczesny lokal użytkowy o funkcji hotelowej w nowo powstającej inwestycji na Białołęce – bardzo dynamicznie rozwijającej się dzielnicy Warszawy.
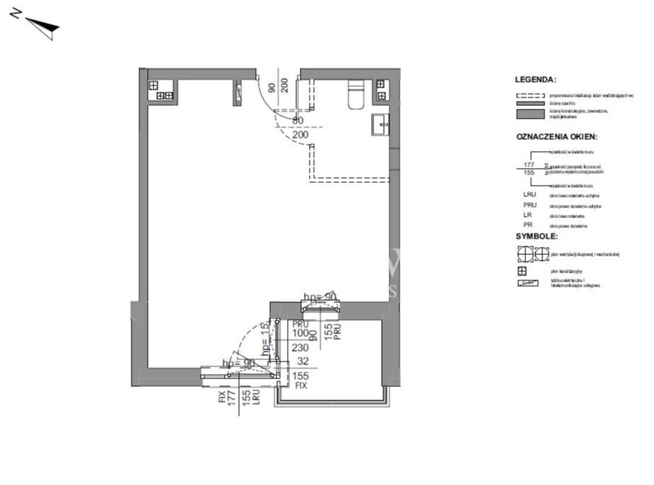
Powierzchnia użytkowa: 32,59 m².
Piętro: 1. piętro (2. kondygnacja).
Lokal posiada dwa okna, co zapewnia świetne doświetlenie i możliwość wydzielenia strefy sypialnianej.
Inwestycja w trakcie budowy – planowane oddawanie lokali początek 2027.
Na terenie osiedla zaplanowano zieloną strefę relaksu tylko dla mieszkańców z prywatnym lasem, oświetlonymi ścieżkami, altankami i ławkami.
W budynku znajduje się hala garażowa oraz rowerownia.
Osiedle monitorowane i chronione.
Proekologiczne rozwiązania- powietrzne pompy ciepła i panele fotowoltaiczne.
Idealna inwestycja pod wynajem- bardzo dobre połączenia komunikacyjne z centrum stolicy.
Do podanej ceny należy dodać 23 % VAT.

KORZYŚCI INWESTYCYJNE:
Możliwość odliczenia VAT od zakupu
Bardzo dobra cena – początek budowy to najlepszy moment na zakup. Dodatkowo płatność podzielona jest na części według harmonogramu i postępu prac.
Atrakcyjna lokalizacja – tuż przy ul. Modlińskiej (3 pasmowa arteria Białołęki, przystanek autobusowy – 4 minuty pieszo od inwestycji), bliskość terenów zielonych, punktów usługowych i oświatowych.
Bezobsługowa inwestycja, wszystko zrobimy za Ciebie- masz możliwość zlecić nam zarządzanie najmem, co pozwala na generowanie pasywnego dochodu, bez codziennej interwencji właściciela. Dodatkowo lokal może być przez nas wykończony i całkowicie przygotowany do wynajmu.
Długoterminowa i bezpieczna lokata kapitału oraz pasywny dochód – ponieważ Warszawa to nadal najbardziej rozwijający się rynek, z całorocznym, regularnym zapotrzebowaniem na zakwaterowanie, posiadanie małego lokalu inwestycyjnego na Białołęce to świetna lokata kapitału z dodatkowym generowaniem regularnych wpływów z najmu. To miasto, które zdecydowanie zwiększa bezpieczeństwo i stabilność inwestycji.
Wzrost wartości nieruchomości – dynamicznie rozwijająca się stolica to nadal zysk wartości nieruchomości na przestrzeni czasu.

Zadzwoń po więcej szczegółów, mamy więcej dostępnych lokali w tej inwestycji.

Cena

440 590 PLN

powierzchnia
32.59 m²
piętro
1
pokoje
1
cena m²
13 519 PLN
parking
Tak

Jesteś zainteresowany tą nieruchomością

skontaktuj się z nami i umów się na spotkanie.

Napisz do nas Zadzwoń do nas