Warszawa, Mokotów

Плоский 73 m²

73 метрів
3 кімнати
5 підлога

Продажі

Ціна

1 680 000 PLN

ціна за m²

22 826 PLN

RESERVATION
MONDRIAN HOUSE | OLD MOKOTÓW | RESIDENCE AT THE SCARPEAD AND THE ENTRANCE TO PROMENADA PARK | 3-ROOM APARTMENT | 5TH FLOOR | QUIET AND GREEN AREA | EXCELLENT COMMUNICATION POINT – A WALK TO PUŁAWSKA STREET

BUILDING: Mondrian House prestigious residence in one of the best locations in Mokotów – located on a slope between Upper and Lower Mokotów, in the immediate vicinity of Promenada and Morskie Oko parks. Elegant and intimate 7-storey buildings, connected by a well-kept green patio, with a representative entrance and hall. Residents of this residence benefit from a number of amenities: private swimming pool, sauna, fitness room, club room and their own Oligocene water intake, convenient underground parking, automatic night lighting, 24-hour security and a porter. Spacious, representative lobby, stylish finishing of common areas of the estate and carefully maintained greenery emphasize the residential character of this place.

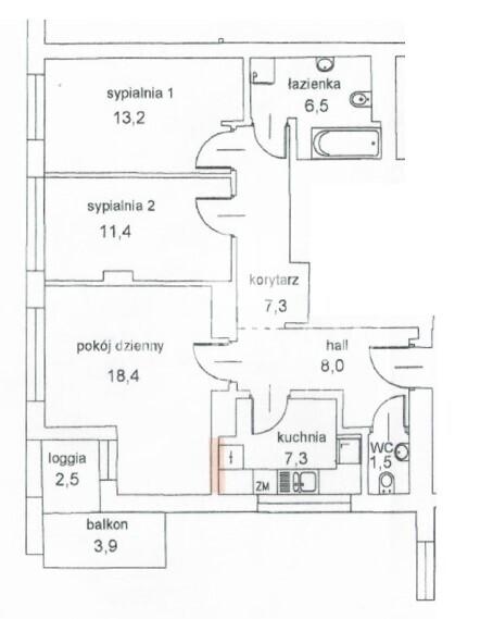
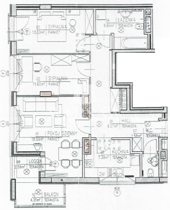
APARTMENT: Elegant, 74-meter apartment is located on the 5th floor.
– All windows and balcony overlook quiet, green areas (old trees) facing west and south.
– Convenient layout – 3 independent rooms, separate kitchen – this is another advantage of the property.
– The apartment consists of a spacious living room (18.69 m2) with access to a 4.21 m2 balcony, a separate, bright kitchen (7.39 m2), two bedrooms (11.8 m2 and 13m2), a bathroom with a bathtub and shower set and a washing machine (6.6 m2), a separate toilet (1.5 m2) and a hall (8.36 m2) with a built-in wardrobe. Currently the apartment is unfurnished.
– Natural parquet and terracotta on the floor. The windows face south and west.

The apartment includes a parking space in the underground garage, additionally payable PLN 80,000, and a storage room for PLN 30,000.
The apartment is fully owned.
As a real estate agency, we charge a commission for the brokerage service. This announcement is for information purposes only and does not constitute an offer within the meaning of art. 66 § 1 of the Civil Code

LOCATION: Mondrian House is located in a quiet corner of Old Mokotów, deep in a small street leading to Dolna Street, right at the entrance to the Promenada and Morskie Oko parks. The area around is quiet, away from the hustle and bustle of the city, yet perfectly organized – close to public transport (buses and trams), next to a large park, numerous service points, clinics, schools and kindergartens. The nearby, extensive green and recreational areas – Promenada Park, Morskie Oko, Łazienki Królewskie and the Sports Centre and Water Park Warszawianka – give the area a unique character. This is an ideal location for people who value the intimate nature of Mokotów streets and an active lifestyle.
More about MONDRIAN HOUSE: The estate was built in 2005 according to the design of the Kulczyński Architekt studio. The residence is a laureate of the Construction Journal Award Best Residential Development 2005. The buildings shapes were adapted to the traditional, twentieth-century development, at the same time they blend in perfectly with the nearby Vistula escarpment. The advantage of the location is the omnipresent greenery and peace, as well as the intimate character, although it must be remembered that the estate is not far from the big city infrastructure.

Ціна

1 680 000 PLN

площа
73.6 m²
підлога
5
кімнати
3
ціна m²
22 826 PLN
автостоянка
Так.

Вас зацікавила ця нерухомість

зв'яжіться з нами, щоб домовитися про зустріч.

Napisz do nas Zadzwoń do nas