Warszawa, Mokotów

שטוח 77 m²

77 מטרים
3 חדרים
1 קומה

מכירות

מחיר

1 640 000 PLN

מחיר ליחידה m²

21 169 PLN

Spacious, comfortable, fully furnished apartment located on the 1st floor in a modern apartment building surrounded by green areas, in the buffer zone of Czerniakowski Lake. Dolny Mokotów, Bernardyńska Street, Mokotów Park, a residence with a private lake surrounded by greenery. DOLNY MOKOTÓW | 77.5 M2 | ONE OF MOKOTÓW'S MOST BEAUTIFUL ESTATES WITH A PRIVATE LAKE | LARGE BALCONY | 2 SEPARATE BEDROOMS | 2 BATHROOMS | EXCELLENT COMMUNICATION POINT VILLA VENTUS

BUILDING: The apartment is located on the 1st floor of the modern, elegant Mokotów Park residential complex, built by the developer Marvipol in 2013, on Bernardyńska Street. The estate consists of 3 elegant residential buildings surrounded by extensive green areas around a private lake. Within the gated complex, you find a lake, numerous walking paths, playgrounds, a private beach, a sports field, and a residents, club/gym. A park and extensive green spaces are located nearby. Numerous paths lead to Czerniakowskie Lake. Nearby, you'll find a modern kindergarten, numerous grocery stores, and service outlets. The Sadyba Best Mall shopping and service center is within walking distance. The complex is gated and guarded, managed by the community. Mokotów Park is one of the most beautiful residential complexes in Warsaw. Beautifully designed buildings with terraces and gardens, high-quality common areas, and perfectly manicured green spaces are the development's greatest assets.

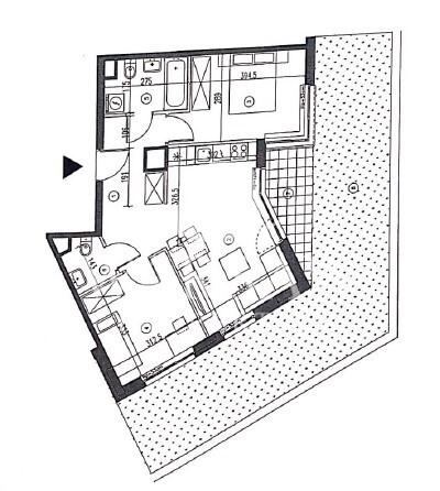
APARTMENT DESCRIPTION: This 3-room apartment boasts a very favorable layout, is on two sides, and is furnished and equipped with ample closet space. Windows overlook the complex grounds, making it bright and quiet. Finished with high-quality materials.
– living room with balcony access, connected by a clear opening to a modern, large kitchen
– bright, comfortable, fully equipped kitchen
– 2 separate, furnished bedrooms, both with large windows
– bathroom with shower
– second bathroom with shower, equipped with a washing machine
– hall with large wardrobes
The apartment is fully owned and has a land and mortgage register. A parking space for 2 cars (double/side-by-side) in the underground garage is available for an additional PLN 100,000.
A large storage unit is available for PLN 35,000.

As a real estate agency, we charge commission for our brokerage services. This announcement is for information purposes only and does not constitute an offer within the meaning of Article 66 § 1 of the Civil Code.

LOCATION: Mokotów Park is located in Lower Mokotów, on the border of the Sadyba and Sielce estates, in the buffer zone of Czerniakowskie Lake, on Bernardyńska Street. Surrounded by extensive green areas and a well-developed district with shops, services, schools, and kindergartens. Sadyba Best Mall is within walking distance. TRANSPORTATION: Numerous bus stops are nearby. Nearby major thoroughfares—Czerniakowska Street and Siekierkowska Route—provide quick and efficient access to the city center and other districts.

מחיר

1 640 000 PLN

שטח פנים
77.47 m²
קומה
1
חדרים
3
מחיר m²
21 169 PLN
חניון
כן

האם אתה מעוניין בנכס זה?

צרו איתנו קשר וקבעו פגישה.

Napisz do nas Zadzwoń do nas