Warszawa, Wola

שטוח 58 m²

58 מטרים
3 חדרים
0 קומה

מכירות

מחיר

1 399 000 PLN

מחיר ליחידה m²

23 825 PLN

3-room apartment in a new building on Karolkowa Street, a 5-minute walk to the Rondo Daszyńskiego metro station.

KAROLKOWA | WALK TO RONDO DASZYŃSKIEGO | 59 m2 | 3 ROOMS | COVERED TERRACE – 5 M + GARDEN – 47 M | FURNISHED | GROUND FLOOR | GARAGE SPACE

BUILDING: The Vice Versa residential complex was built in 2020 in an excellent location on Karolkowa Street, in a quiet, green part of Wola – next to the 19th district estate.
Green areas are nearby, just a few minutes from the city center. Modern design and high standard of workmanship give the estate a prestigious appearance.
Inside, there is a green patio with a playground and an outdoor gym. Residents have access to paths, benches, and bicycle racks in the covered section.
The estate has 24-hour security and a reception.

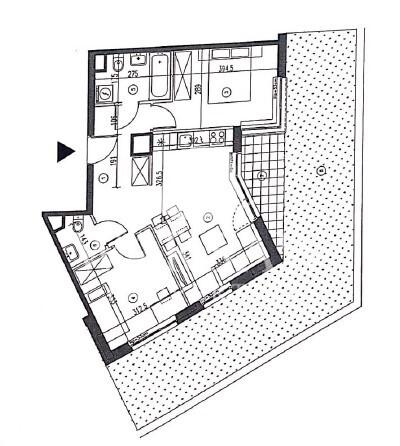
APARTMENT DESCRIPTION: Spacious apartment located on the ground floor in a new building with an elevator.
– The living room opens onto a bright kitchen with a large balcony window and access to the terrace and garden. It is equipped with a large sofa bed, an armchair, a SMART TV, a TV stand, and a table with chairs.
– A fully equipped kitchen with a refrigerator, dishwasher, stove, and oven.
– Two large bedrooms, each with a large wardrobe, a double bed with a mattress, and bedside tables.
– A comfortable bathroom with a bathtub and a washing machine.
– A separate toilet with a sink.
– A built-in wardrobe with a mirror in the hall.
– A large corner garden and a covered terrace. The apartment features large windows (facing east), providing natural light.

A parking space in the underground garage is available for an additional PLN 60,000.
The underground garage has charging stations for electric cars.
Administrative fees, advance payments for utilities, and garbage collection: approximately PLN 1,000 per month.

NEIGHBORHOOD: The VICE VERSA development is located on Karolkowa Street, just minutes from the city center, near well-known residential areas such as the 19th district. From this location, everything is close, whether you are traveling by car, tram, bus, bike, or on foot. The development is located close to the center of Warsaw, in one of the city most dynamically developing districts. The area offers full urban infrastructure, including restaurants, shops, services, a hospital, and clinics.

TRANSPORTATION: The Vice Versa building is a 5-minute walk from the Rondo Daszyńskiego metro station, and numerous tram and bus stops are also nearby.

As a real estate agency, we charge a commission for our brokerage services.
This announcement is for information purposes only and does not constitute an offer within the meaning of Article 66 § 1 of the Civil Code.

מחיר

1 399 000 PLN

שטח פנים
58.72 m²
קומה
0
חדרים
3
מחיר m²
23 825 PLN
חניון
כן

האם אתה מעוניין בנכס זה?

צרו איתנו קשר וקבעו פגישה.

Napisz do nas Zadzwoń do nas