Wysoka,

שטוח 35 m²

35 מטרים
2 חדרים
2 קומה

מכירות

מחיר

540 000 PLN

מחיר ליחידה m²

15 160 PLN

Południk 17 • Building K1 • Wrocław, Krzyki-Partynice • New apartment • Developer standard

Apartment — 35.62 m² — 2 rooms — 2nd floor

Area: 35.62 m²
Rooms: 2 rooms
Floor: 2nd / 8
Ceiling height: 2.57 m
Completion: Q2 2026

The apartment is offered in developer standard. Full interior fit-out according to the buyer’s own design is required.
Sale by assignment of the developer agreement.

Orientation: The apartment is located in building K1. The living room with kitchen area faces east — sunlight and an open-space view.

Apartment Description
A unique opportunity to acquire a functional 2-room apartment on the 2nd floor of the new building K1 in the prestigious Południk 17 development — one of Archcom’s most anticipated projects on the southern side of Wrocław.

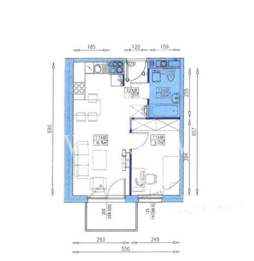
The 35.62 m² apartment offers a well-thought-out layout:
•a spacious living room with open kitchen area,
•a separate bedroom,
•a bathroom with a bathtub,
•an entrance hall.

Large glazing provides excellent natural lighting. Room height: 2.57 m.

Room Layout:
•Living room with kitchen area (2.2.4.03) — 18.76 m²
•Bedroom (2.2.4.04) — 9.67 m²
•Entrance hall (2.2.4.01) — 3.22 m²
•Bathroom (2.2.4.02) — 3.97 m²

The Development:
Południk 17 is Archcom’s flagship investment in Wrocław’s Krzyki district, on Al. Karkonoska — in a straight line from the city centre. The name refers to the 17°00’00 longitude line that crosses Wrocław at this very location — from Szymanow Airport to the Partynice Horse Racing Track.
The general contractor is Budimex — a guarantee of quality and on-time delivery.
The estate is designed around the 15-minute city concept: everything you need on a daily basis is right at your doorstep.

Estate Amenities:
•Smart home: Blue Bolt and Fibaro systems (lighting, access, gate control)
•24/7 security and external area monitoring
•Underground parking garage in the building (parking spaces available separately)
•Bicycle storage with hooks
•Residents’ Club and chillout room
•Children’s playground
•Over 200 trees and many other plantings
•Pergola and neighbourhood meeting areas

Location & Surroundings:
Green spaces & recreation:
•850 m from Kleciński Park (playground, outdoor gym, dog run)
•Adjacent to Southern Park and the Wrocław Partynice Horse Racing Track

Transport:
•Tram to the city centre every few minutes — stop just outside the estate
•Partynice PKP railway station (Lower Silesian Railways)
•Al. Karkonoska — direct route to the centre and fast access south
•Wrocław Rower bike-share station on site

Infrastructure within walking distance:
•Numerous cafés and restaurants, shops, sports facilities and medical centres.
•Many playgrounds and educational institutions.
•Wroclavia shopping centre accessible by tram.

Please feel free to contact our office.
As a real estate agency, we charge a commission for our intermediary services.
This listing is for informational purposes only and does not constitute an offer within the meaning of Article 66 § 1 of the Civil Code.

מחיר

540 000 PLN

שטח פנים
35.62 m²
קומה
2
חדרים
2
מחיר m²
15 160 PLN
חניון
לא

האם אתה מעוניין בנכס זה?

צרו איתנו קשר וקבעו פגישה.

Napisz do nas Zadzwoń do nas