Warszawa, Wola

שטוח 32 m²

32 מטרים
1 חדרים
6 קומה

מכירות

מחיר

710 000 PLN

מחיר ליחידה m²

21 739 PLN

REDUTOWA | CITY FLOW | FIRST STAGE, BUILDING 1, DELIVERED AND OCCUPIED | 6TH FLOOR | LARGE LOGGIA – 10 M OF ADDITIONAL SPACE | HUGE WINDOWS | POSSIBILITY OF SEPARATE A BEDROOM

Apartment handed over, keys in the office! Schedule a viewing. New apartment in developer's finish standard in the new City Flow estate by the renowned developer OKAM. The apartment has a very favorable layout – the possibility of separating a bedroom, with large south-facing windows overlooking the green passages within the estate. Apartment height 2.75 m.

ABOUT THE ESTATE: The CITY FLOW estate by the renowned developer OKAM is being built in the Wola district, on Redutowa Street. The development features a range of environmentally friendly solutions and amenities that improve the quality of life for residents. The estate covers approximately 1.5 hectares of biologically active area. Extensive outdoor areas will be designated for relaxation and sports. Green courtyards with automatic irrigation using collected rainwater, an amphitheater, a relaxation area with loungers and hammocks, a vegetable garden, and a pet-friendly area are being created here. FOR RESIDENTS, a residents' club, a fitness center, and a bicycle rental service will be available.

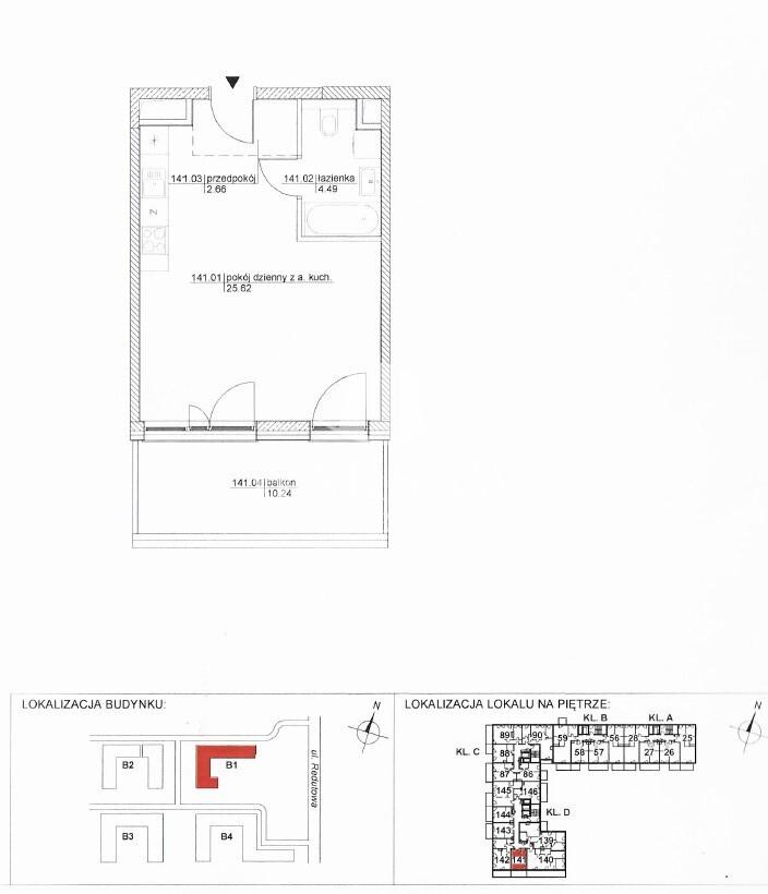
APARTMENT DESCRIPTION: This attractive 33.8 m² studio apartment is located on the 3rd floor of a new building – Phase 1, Building 1. It comprises the following rooms: – a 25.50 m² living room with a kitchenette – a 2.70 m² hallway with wardrobe space – a 4.46 m² bathroom – and a 10.04 m² south-facing loggia balcony. The apartment is equipped with a Smart Home management system. Appartme Standard is a home automation system that allows you to control four main areas: heating, electricity, lighting, and valves. The apartment is quiet, bright, and has a beautiful view of the estate's inner green passages (no vehicular traffic). The apartment is in developer' finish, ready for finishing. A parking space and a storage unit are also available for sale.

Apartment price: PLN 740,000, parking space in the underground garage – PLN 50,000, storage unit (3.6 m²) – PLN 30,000. As a real estate agency, we charge a commission for our services. This announcement is for informational purposes only and does not constitute an offer within the meaning of Article 66 § 1 of the Civil Code.

ABOUT THE ESTATE: A modern housing estate – CITYFLOW – is being built in the Warsaw district on Redutowa Street. Residents will find peace and a wide variety of outdoor activities here, while remaining in the heart of the capital's action. And all this is surrounded by greenery – almost 40% of the estate is biologically active. Nearby, public transport stops, kindergartens, schools, shops, restaurants, bars, banks, and many other services make life easier and save time. A green, central park will run through the center of the development, along an east-west axis. On the west side, an activity, relaxation, and meeting zone is being created – for the exclusive use of residents. This zone will provide a wealth of exciting outdoor activities, including a children's playground, a relaxation area with loungers and hammocks, an amphitheater, a water mist area, and a dog recreation area.

מחיר

710 000 PLN

שטח פנים
32.66 m²
קומה
6
חדרים
1
מחיר m²
21 739 PLN
חניון
כן

האם אתה מעוניין בנכס זה?

צרו איתנו קשר וקבעו פגישה.

Napisz do nas Zadzwoń do nas