- nowe mieszkania w stanie deweloperskim
- duży potencjał inwestycyjny
- gotowe do odbioru
Warszawa, Wola
Mieszkanie 32 m²
Sprzedaż
710 000 PLN
21 739 PLN
REDUTOWA | CITY FLOW | PIERWSZY ETAP, BUDYNEK 1, ODDANY I ZAMIESZKANY | 6 PIĘTRO | DUŻA LOGGIA – 10 M DODATKOWEGO MIEJSCA | OGROMNE OKNA | MOŻLIWOŚĆ WYDZIELENIA SYPIALNI
Mieszkanie odebrane, klucze w biurze! Umów się na oglądanie
Nowe mieszkanie w stanie deweloperskim na nowym osiedlu City Flow znanego dewelopera OKAM.
Lokal o bardzo korzystnym rozkładzie – możliwość wydzielania sypialni, z ogromnymi oknami z wystawą południową, z widokiem na zielone pasaże wewnątrz osiedla.
Wysokość mieszkania 2,75 m
O OSIEDLU: Osiedle CITY FLOW znanego dewelopera OKAM powstaje na terenie dzielnicy Wola, przy ulicy Redutowej.
Inwestycję charakteryzuje szereg rozwiązań przyjaznych środowisku i udogodnień podnoszących komfort życia mieszkańców. Teren osiedla obejmuje około 1,5 ha powierzchni biologicznie czynnej. Rozległe tereny zewnętrzne zostaną przeznaczone pod odpoczynek i sport. Powstają tu zielone dziedzińce z układem automatycznego nawadniania zbieraną wodą deszczową, amfiteatr, strefa relaksu z leżakami i hamakami, ogródek warzywny, teren dla czworonogów.
DLA MIESZKAŃCÓW powstanie klub mieszkańca, lokal fitness oraz wypożyczalnia rowerów.
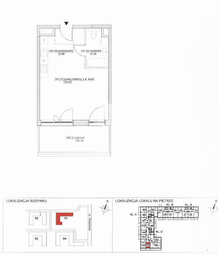
OPIS APARTAMENTU: Ładna kawalerka o powierzchni 33,8 m znajduje się na 3 piętrze w nowym budynku – pierwszy etap, budynek 1.
Składa się z następujących pomieszczeń:
– salon z aneksem kuchennym o powierzchni 25,50 m2
– przedpokój z miejscem na szafę 2,70 m2
– łazienka o powierzchni 4,46 m2
– balkon typu loggia o powierzchni 10,04 m2 z ekspozycją południową.
Mieszkanie wyposażone w Smart Home – system zarządzania lokalem.Appartme Standard to system automatyki mieszkaniowej, które pozwala na sterowanie 4. głównymi obszarami: ogrzewaniem, elektrycznością, oświetleniem i zaworami.
Lokal jest cichy, jasny i posiada ładny widok na wewnętrzne zielone pasaże osiedla (bez ruchu kołowego).
Mieszkanie w stanie deweloperskim, gotowe do wykończenia.
NA sprzedaż również miejsce postojowe oraz komórka lokatorska
Cena mieszkania: 710 000 PLN , cena miejsca postojowego w garażu podziemnym – 50 000 PLN , komórka lokatorska (3,6 m2) – 30 000 PLN
Jako agencja nieruchomości pobieramy opłatę za usługę pośrednictwa w formie prowizji. Niniejsze ogłoszenie ma charakter wyłącznie informacyjny i nie stanowi oferty w rozumieniu art. 66 § 1 Kodeksu Cywilnego.
O OSIEDLU: W warszawskiej dzielnicy przy ulicy Redutowej powstaje nowoczesne osiedle – CITYFLOW. Mieszkańcy znajdą tu spokój i propozycję wielu różnorodnych form odpoczynku na świeżym powietrzu, pozostając przy tym w centrum wydarzeń stolicy. A wszystko w otoczeniu zieleni – prawie 40% terenu osiedla to powierzchnia biologicznie czynna.
W okolicy osiedla – przystanki komunikacji miejskiej, przedszkola, szkoły, sklepy, restauracje, bary, banki i wiele innych punktów usługowych ułatwiają życie i generują oszczędność czasu.
Wewnętrzny zielony, centralny park będzie przebiegał pośrodku osiedla, na osi wschód-zachód. Od strony zachodniej, powstaje tzw. strefa aktywności, relaksu i spotkań – do wyłącznego użytku mieszkańców. Strefa dostarczy mnóstwo ciekawych możliwości spędzenia czasu na świeżym powietrzu, oferując: plac zabaw dla dzieci, strefę relaksacji z leżakami i hamakami, amfiteatr, plac z mgłą wodną, teren rekreacyjny dla psów.