Łódź, Łódź-Śródmieście

Flat 32 m²

32 metres
2 rooms
1 floor

Sales

Price

367 293 PLN

price per m²

11 460 PLN

NICE 2-ROOM APARTMENT | 1ST FLOOR | LARGE BALCONY – 7.7 m
New investment by the renowned developer OKAM in the new center of Łódź – NOW by OKAM.

ABOUT THE ESTATE: New residential investment – NOW. In the city center at 18 Dowborczyków Street. Planned amenities: representative lobby / fitness area / rooftop terrace / green courtyards / workout zone / scooters and bicycles / smart home solutions Planned completion of the investment: 2026. The project is aimed at people who value a friendly environment and attractive urban infrastructure. The new residential project from OKAM will be adjacent to the already restored, multifunctional office complex – ŁÓDŹ.WORK.

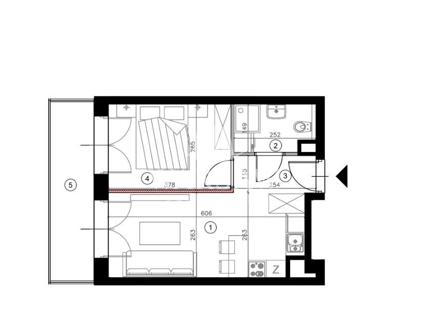
APARTMENT DESCRIPTION: The apartment is in developer's standard. Key collection: planned for 2026. Beautiful apartment in section A, located on the 1st floor, with a large balcony – west-facing onto the estate
– living room with kitchenette and large balcony windows – 15.74 m2 – with access to a large balcony of 7.69 m2
– bedroom – 9.92 m2
– bathroom – 3.49 m2
– hallway – 2.90 m2.

The apartment is in developer’s finish. Assignment of the development agreement. As a real estate agency, we charge commission for our services. This announcement is for information purposes only and does not constitute an offer within the meaning of Article 66 § 1 of the Civil Code.

Price

367 293 PLN

area
32.05 m²
floor
1
rooms
2
price m²
11 460 PLN
car park
Not

You are interested in this property

contact us for an appointment.

Napisz do nas Zadzwoń do nas